Schöne Wohnung im 1. OG mit Balkon zum 01.03.2026 frei!

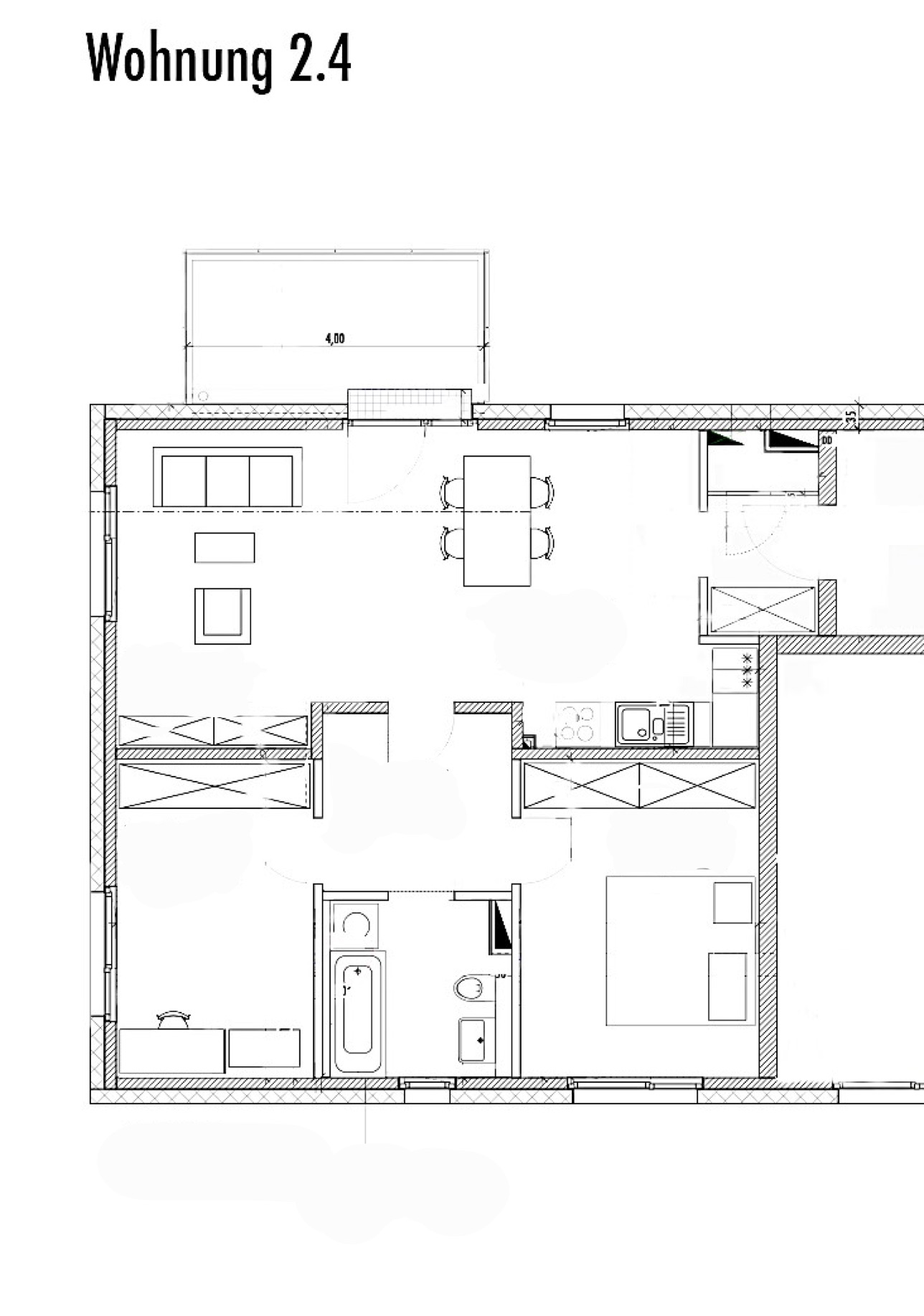
Wir vermieten ab dem 01.03.2026 eine helle und schöne 3-Zi.Wohnung (75,2 qm) in der 1.Etage.
Die Wohnung befindet sich in einem Wohnprojekt, erbaut 2009. Es gibt ein Wohnzimmer mit offener Küche, ein Schlafzimmer, ein Kinderzimmer und ein Bad mit Badewanne u. mit Fenster. Zur Wohnung gehört ein Balkon (Westseite) mit Blick auf das Wohnprojekt, Kellerraum und ein optionaler PKW Stellplatz.
Ein Wohnberechtigungsschein ist von Vorteil. Interessenten ohne WBS können sich aber auch bewerben.
ACHTUNG: Für diese Wohnung müssen Genossenschaftsanteile gekauft werden, pro Quadratmeter 250 € (Geno Anteile : 75 x 250€ = 18.750 €)
Bei einem Auszug wird dieses Geld wieder ausgezahlt.
Das Geld für die Genossenschaftsanteile muss innerhalb von 12 Monaten aufgebracht werden können.
Bitte bei Kontaktaufnahme an
- die Kennziffer Haler Ort 5
- Informationen zum Wohnberechtigungsschein
- Informationen zum Aufbringen der Genossenschaftsanteile
- Telefonnummer
angeben.
Für alle, die die Gesamtsumme nicht aus Rücklagen aufbringen können, bietet die KfW-Bank einen zugeschnittenen Kredit an. Durch die insgesamt geringe Miete, im Vergleich zum Lübecker Mietspiegel, sind Miete und Tilgung zusammen immernoch günstig. KfW-Wohneigentumsprogramm – Genossenschaftsanteile
| Größe | 75,2 qm |
| Kaltmiete | 534,17 € |
| Nebenkosten | 154,16 € |
| optionaler Parkplatz | 10 € |
| Genossenschaftsanteile | 18.750 € |